2026年4月完成予定の新築アパート! 表面利回り約6.66%!生活利便施設が充実の立地! 3沿線2駅利用可で通勤通学に便利!
登録日/2026年03月05日 更新日/2026年04月21日
お問い合わせ番号/ 3878
(一棟)アパート
18,300万円
利回り:- 京都府京都市伏見区深草仙石屋敷町
- 建物構造/階建
- 木造/3階建
- 築年月
- 【令和-】2026年04月 / 築0年
- 最寄駅
-
- 京阪電気鉄道京阪線
- 藤森駅徒歩12分
- 京都市烏丸線
- 竹田駅徒歩14分
- 近鉄京都線
- 竹田駅徒歩14分
- 間取り/面積
-
- 間取り
- -
- 土地面積
- 203.24m2 / 61.48坪
- 延床面積
- 456.63m2 / 138.13坪
- 延床面積1F
- -
- 延床面積2F
- -
- 延床面積3F
- -
オーナーチェンジ
この物件の主な特徴
上水道 公営 汚水 下水道 ガス 都市ガス 室内洗濯機置場 フローリング 3階建以上 独立洗面台 宅配ボックス バイク置き場 駐輪場 スーパー 徒歩10分以内 オーナーチェンジ ※設備名をクリックで対象の設備の物件一覧を絞り込み- 現行利回り、現行収入
-
- 現行利回り
- -
- 現行収入
- -
- 利回り(想定)、想定収入
-
- 利回り(想定)
- 6.66%
- 想定収入
- 1220万円
- オーナーチェンジ
- オーナーチェンジ物件
- 事業用現況
- -
- 事業用 引き渡し状態
- -
- 事業用備考
- -
- 所在地
- 京都府京都市伏見区深草仙石屋敷町
- 交通
-
京阪電気鉄道京阪線藤森駅 徒歩12分
京都市烏丸線竹田駅 徒歩14分
近鉄京都線竹田駅 徒歩14分
- 土地面積
- 203.24m2
- 土地面積(坪)
- 61.48坪
- 建物延床面積
- 456.63m2
- 建物延床面積(坪)
- 138.13坪
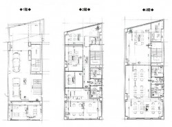
- 間取り
-
階数 区分 広さ - 駐車場
-
- 駐車可否・駐車可能台数
- -
- 公共設備
-
- ガス
- 都市ガス
- 水道
- 公営水道
- 汚水
- 公共下水
- 雑排水
- 公共下水
- 学校区
-
- 小学校区
- - 距離:-
- 中学校区
- - 距離:-
- 地目
- 宅地
- 地勢
- -
- 最適用途
- -
- 建ぺい/容積率
- 60%/160%
- 引渡時期
- 相談
- 用途地域
- 第一種中高層住居専用地域
- - 都市計画
- 市街化区域
- 建築許可理由
- -
- 建築確認番号
- 第JAIC2025W0342A1号
- 接道状況 他
-
- 向
- -
- 角地
- 角地
- 私道
-
- 私道
- -
- 持分
- -
- 面積(区分)
- -
- 面積
- -
- 面積(単位)
- -
- セットバック面積
-
- 状態
- -
- 幅
- -
- 面積
- -
- 土地権利
-
- 権利
- 所有権
- 備考
- -
- 借地
-
- 借地期間条件
- -
- 借地権契約期間
- --
- 借地権満了日
- -
- 地代
- -
- 権利金
- -
- 再建築
- -
- 国土法届出
- 不要
- その他制限事項
- -
備考:- - 町会費
- --
- 備考
- 【建築確認番号:第JAIC2025W0342A1号】
※敷地内ごみ置き場
・年間想定賃料収入:1,220,40万円
※店舗×1戸、ストックヤード付き1LDK住戸×10戸
【法令上の制限等】
準防火地域、20m第2種高度地区、町並み型建造物修景地区、宅地造成等工事規制区域、下水道処理区域
▼周辺施設▼
・スーパーフレスコ 竹田店 約600m 徒歩8分
・ファミリーマート 京都深草フチ町店 約500m 徒歩7分
・セブンイレブン 深草西浦8丁目店 約600m 徒歩8分
・ワッツ 竹田店 約650m 徒歩9分
・京都小久保郵便局 約350m 徒歩5分
・京都市青少年科学センター 約700m 徒歩9分
・七瀬川公園 約45m 徒歩1分 - 取引態様
- 仲介
公益社団法人 京都府宅地建物取引業協会
公益社団法人 全国宅地建物取引業保証協会
株式会社日本住宅保証検査機構 登録事業者
公益社団法人 全国宅地建物取引業保証協会
株式会社日本住宅保証検査機構 登録事業者







