忙しい朝でも嬉しい駅歩6分の身近さ! 全居室広々6帖以上!トイレが2ヶ所あるのも嬉しいポイント♪ 小中学校は徒歩5分圏内で子育て世帯にも安心の環境♪
登録日/2026年01月11日 更新日/2026年03月02日 次回更新予定日/随時
お問い合わせ番号/ 3770
新築戸建
3,580万円
京都府京都市伏見区桃山町弾正島- 建物構造/階建
- 木造/3階建
- 築年月
- 2026年03月 / 築0年
- 最寄駅
-
- 京阪電気鉄道宇治線
- 観月橋駅徒歩6分
- 京阪電気鉄道京阪線
- 中書島駅徒歩8分
- 京阪電気鉄道宇治線
- 中書島駅徒歩8分
- 間取り/面積
-
- 間取り
- 3LDK
- 土地面積
- 65.26m2 / 19.74坪
- 延床面積
- 86.53m2 / 26.17坪
- 延床面積1F
- 26.92m2
- 延床面積2F
- 33.12m2
この物件の主な特徴
上水道 公営 汚水 下水道 ガス 都市ガス 室内洗濯機置場 フローリング 全居室フローリング 3階建以上 独立洗面台 浴室に窓 トイレ2ヶ所 全居室収納 収納スペース クローゼット システムキッチン カウンターキッチン コンロ口数 三口 小学校 徒歩10分以内 ※設備名をクリックで対象の設備の物件一覧を絞り込みローンシミュレーション
- 物件価格
- 3,580万円
- 金利
- 返済期間
-
年
※物件によってはローン年数が変わる場合がございます。
- 頭金
-
万円
※半角数字でご入力ください。
- ボーナス併用支払い
-
併用する
3580.00万円のうちボーナス返済分
万円
※半角数字でご入力ください。
- 月割返済額
- ボーナス支払い額
(年2回) - 学校区
-
- 小学校区
- 京都市立伏見南浜小学校 距離:400m
- 中学校区
- 京都市立桃陵中学校 距離:250m
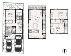
- 間取り詳細
-
階数 区分 広さ 1F 洋 6.0帖 2F LDK 16.2帖 3F 洋 6.5帖 3F 洋 6.0帖 - 駐車場
-
- 駐車可否・駐車可能台数
- 有
- 駐車場所
- 敷地内
- 公共設備
-
- ガス
- 都市ガス
- 水道
- 公営水道
- 汚水
- 公共下水
- 雑排水
- 公共下水
- 接道状況 他
-
- 向
- 一方
- 角地
- -
- 公道
- 北
- 幅員
- 4.38m
- 接面
- 4.49m
- 私道
-
- 私道
- -
- 持分
- -
- 面積(区分)
- -
- 私道負担
- -
- 面積(単位)
- -
- セットバック面積
-
- 状態
- セットバック無
- 幅
- -
- 面積
- -
- 現況
- 未着工
- 引渡時期
- 相談
--- - 地目
- 宅地
- 地勢
- 平坦
- 用途地域
- 第一種住居地域
- - 建ぺい/容積率
- 60%/200%
- 都市計画
- 市街化区域
- 建築許可理由
- -
- 建築確認番号
- 第R07確認建築PLN奈支0251号
- リフォーム
- -
- - リノベーション
- -
- - 土地権利
-
- 権利
- 所有権
- 備考
- -
- 再建築
- -
- 国土法届出
- 不要
- その他制限事項
- 準防火地域、15m第2種高度地区
備考:美観地区(岸辺型)、近景デザイン保全区域、屋外広告物規制区域(第2種地域)、居住誘導区域、近郊整備区域、宅地造成等工事区域 - 町会費
- --
- 備考
- 【建築確認番号:第R07確認建築PLN奈支0251号】
※幅員約4.38m~約4.41m
表題登記関連費用:110,000円(税込)、
設計住宅性能評価書申請費用:110,000円(税込)別途要
※造付きバルコニー:3.64㎡
▼周辺施設▼
・業務スーパー 大手筋店 約110m 徒歩14分
・ファミリーマート 伏見中書島店 約650m 徒歩9分
・伏見公園 約350m 徒歩5分
・京都京町郵便局 約550m 徒歩7分
・伏見南浜幼稚園 約450m 徒歩6分
・桃陵乳児保育園 約650m 徒歩9分 - 取引態様
- 仲介
※金利につきましては各金融機関の審査金利及び融資金利により異なります。
実際の返済額は結果と異なりますので、資産計画の目安としてご利用ください。
詳しいお問い合わせは、こちらよりご相談ください。
公益社団法人 京都府宅地建物取引業協会
公益社団法人 全国宅地建物取引業保証協会
株式会社日本住宅保証検査機構 登録事業者
公益社団法人 全国宅地建物取引業保証協会
株式会社日本住宅保証検査機構 登録事業者






